Ev. Kirche | Schwäbisch Hall
Kultur & Sakralbau
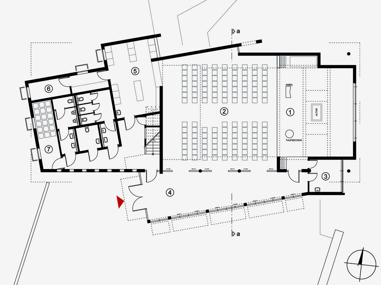
Ev. Sophie Scholl Gemeindezentrum
Bauherrschaft:
Ev. Gesamtkirchengemeinde
Mauerstraße 5
74523 Schwäbisch HallFertigstellung: 2003
Leistungsphasen: 1 – 9
Wettbewerb
Kultur & Sakralbau
Ev. Sophie Scholl Gemeindezentrum
Bauherrschaft:
Ev. Gesamtkirchengemeinde
Mauerstraße 5
74523 Schwäbisch Hall
Fertigstellung: 2003
Leistungsphasen: 1 – 9
Wettbewerb